Explore how architecture and cutting-edge audio-visual design transformed Cravings food hall in Eastvale with stunning AV solutions.
Transformative Audio-Visual design at Cravings Food Hall
Cravings Food Hall, Audio / Video Design & Install
Exciting New Project: Transformative Audio-Visual design at Cravings Food Hall
We recently teamed up with Sunny Skies Terrace on a fantastic project: Transformative Audio-Visual Design at Cravings Food Hall, their brand-new food hall in beautiful Eastvale, California. This modern food hall is not only visually stunning but also features an incredible audio and video setup โ powered by the Q-SYS platform โ that truly brings the space to life!
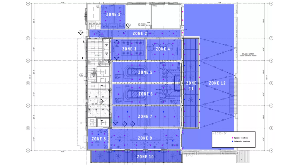
Designing the Perfect Audio-Visual Experience
Our journey began with designing the ideal audio and video experience for the food hall. To start, we held design meetings with architects and developers to understand the guest experience they aimed to create. Using their drawings, we then mapped out speaker and display placements, along with wiring plans and power requirements. This helped transform the space into something spectacular!










